Amish Built Cabins
White Barn House Kit (OFFERED AS FULLY BUILT MODULAR TOO!)
White Barn House Kit (OFFERED AS FULLY BUILT MODULAR TOO!)
Couldn't load pickup availability
The White Barn House Kit
DIY House Kit: $206,000
Prebuilt Modular Home: $395,000
Experience the charm and elegance of farmhouse-inspired living with The White Barn House Kit, one of our most popular and timeless home designs. This classic design combines modern functionality with rustic appeal, making it the perfect choice for families, empty nesters, or anyone looking for a forever home.
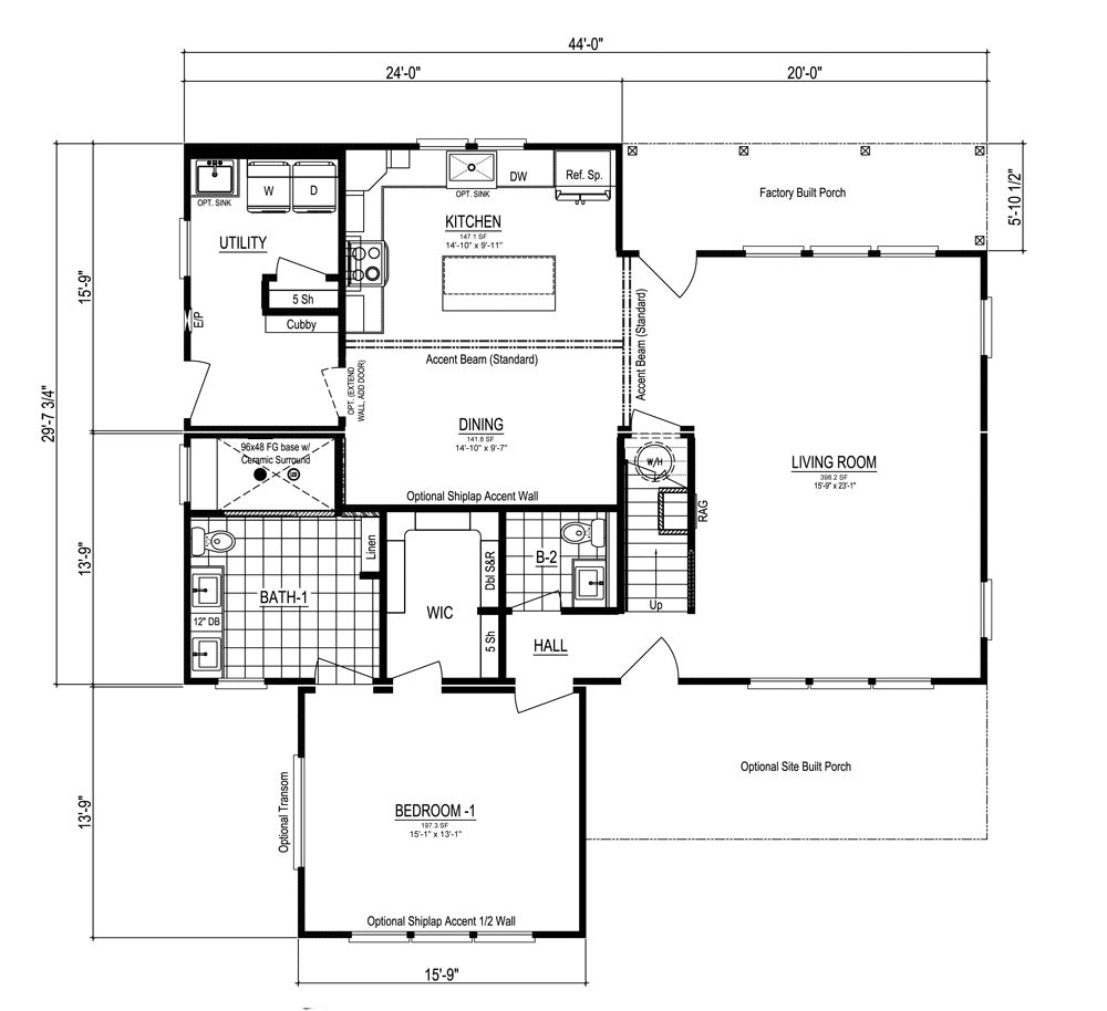
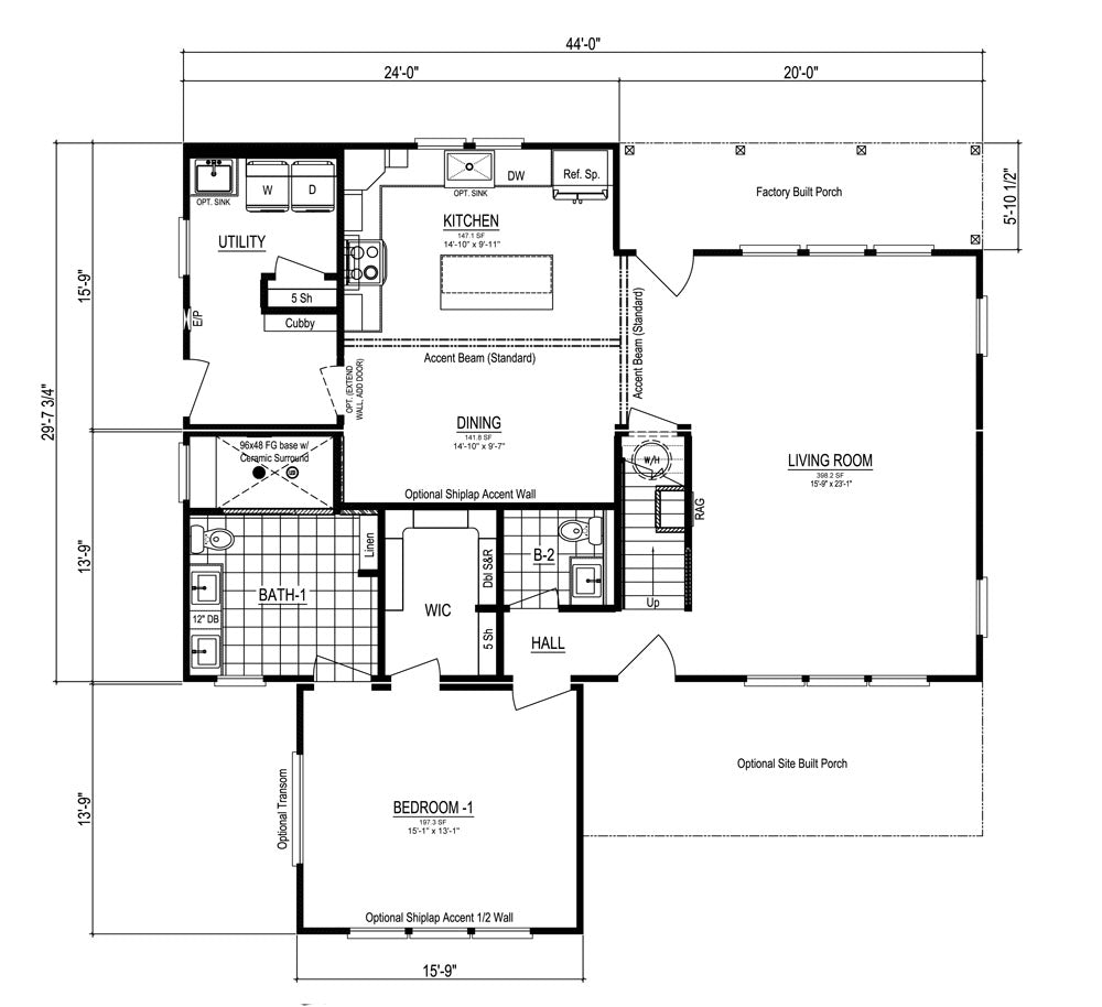
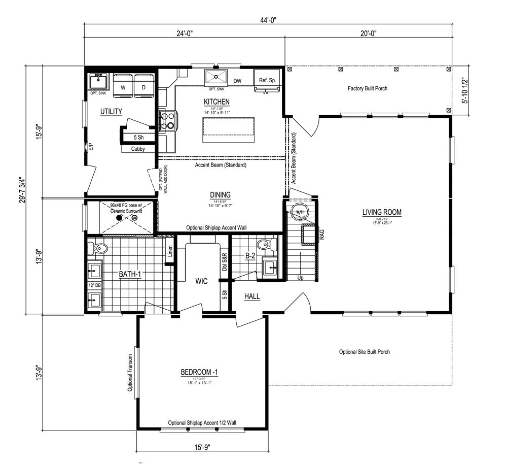
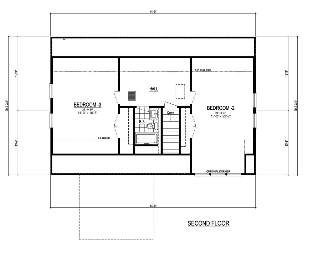
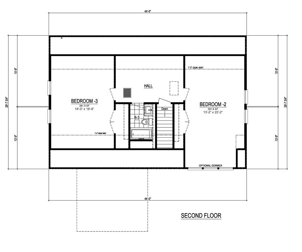
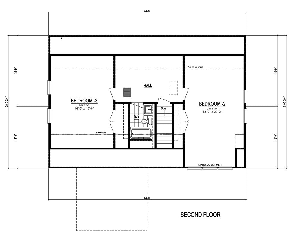
Specs & Layout
- 2,289 Heated Sq. Ft.
- 3 Bedrooms
- 2.5 Baths
Two Options to Build Your Dream Home
-
DIY House Kit ($206,000)
- Perfect for those who enjoy hands-on projects, the DIY house kit includes all the materials and components you need to build your home yourself.
- A cost-effective option that lets you bring your vision to life.
-
Prebuilt Modular Home ($395,000)
- Our most popular option! We factory-build the home to ensure precision and quality, ship it to your location, and handle the installation on your foundation.
- This turnkey solution takes the stress out of construction, allowing you to move into your home faster and with confidence.
- Land prep, foundation, and septic installation are managed by you as the landowner.
Why Choose The White Barn House Kit?
- Classic, Timeless Design: The farmhouse-inspired architecture is both elegant and enduring, blending seamlessly into rural or suburban settings.
- Versatility: Whether you’re a DIY enthusiast or prefer a fully built home, we offer solutions to fit your needs.
- Popular Choice: Its thoughtful layout and iconic design make it one of our most sought-after models for both kits and modular homes.
Create your dream home with The White Barn House Kit! Whether you choose to build it yourself or opt for the turnkey modular option, you’ll love the craftsmanship, design, and comfort of this stunning farmhouse-style home.
Contact us today to learn more or to get started on your journey to owning The White Barn House!
Prices are subject to change. Reach out for details and availability.
Share























